You are now in the main content area

DAS Students Win First Place in Canadian Centre for Architecture (CCA) Design Competition

November 16, 2018

Second and third-year undergraduate students Elizabeth Young, Shengnan Gao, Alvin Huang, Justin Arbesman, and Nicole Burdynewicz placed first in this year's Housing One by One (external link, opens in new window)  CCA Interuniversity Design Charrette. Participants included undergraduate and graduate students from the University of Toronto, University of Waterloo, McGill University, and Cartleton University. 

The 2018 Theme of Affordable Housing

Elizabeth: This design was inspired by the need for flexibility and compactness which leads to the affordability of the units, given the 1m by 1m constraint we developed a system which was flat packable as to provide cheap and easy transportation. Once the packages arrived at site they could be easily assembled, installed, and furnished. We used materials that are sustainable which added the to aesthetic quality and overall environmental footprint of the housing units.

Alvin: What inspired us with the challenge of “one by one” was the idea of shipping packing components similar to Ikea furniture.

Shengnan: Initially, the idea was to create a configuration of walls connected together. The structure could be deployed on site easily to create walls, ceilings, and floors simultaneously with minimal labour, so that anyone can build their houses.

Nicole: We needed to create many constraints for ourselves as the prompt was quite open-ended. What our design also needed to be was customizable and easily alterable. However, just providing sticks and panels was problematic in terms of feasible structural stability as well as a proper construction practices in this climate. We therefore determined that having structured modules would be easiest to implement, and having a basic line of them would be accessible to the general population. Those modules, of course, could then be easily customizable, components could be traded, and new objects and attachments could be created for individual needs. A precedent that inspired us was the world’s narrowest house located in Warsaw, and we discovered the possibilities of using these kinds of spaces in a functional way. We didn’t want to go to that extreme, but finding larger spaces and elevating them allowed for a more socially accessible way of living that still pushes the boundaries of housing while still using the space at grade for vehicular and pedestrian traffic.

To meet the demand of affordability, we expected to minimize the material costs and on-site construction duration as apart of the design. At the same time, we considered the customization, aesthetic, and functionality.

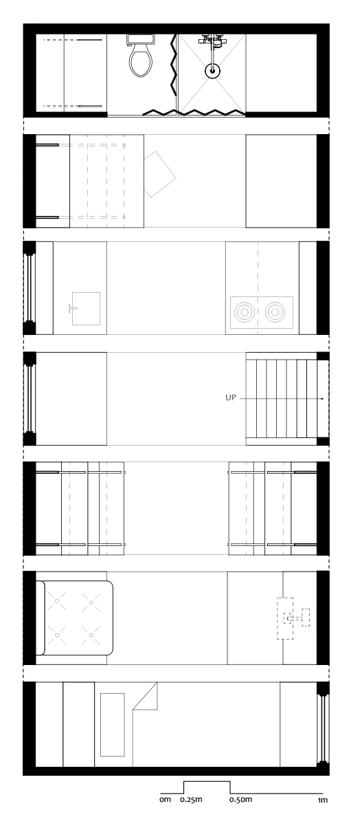
charrette floorplan drawing

Proposed floorplans of modules.

The Hexagonal Shape

Elizabeth: The key to the hexagonal shape was its ability to be folded for easy transportation. From there we developed an interesting series of levels for the different units. This then yielded the opportunity to make the series of units more flexible, so that the individuals who live in the spaces can personalize their space. The different sets of clusters would contain the essential program including the sleeping quarters, washroom, and kitchen. The rest is up to the individual to personalize. This personalization creates different clusters for wherever this system could be deployed, creating an interesting way to fill up unused empty spaces in between buildings. For the interior material palette, we chose to stick to a more cozy vibe since the spaces are already so small. For the exterior we chose to use material but express it in a different way, thus we used a fired wood cladding system which contrasts the interior coziness.

Alvin: The Hexagonal shape was the result of a study of different geometries, but the stackability and simplicity provided by the hexagon rendered it as the best choice for creating dynamic housing patterns. Moreover, rather than vertically stacked homes, rooms are displaced at a diagonal path to allow for multiple stacked units that do not exceed height limits as would stacking rectangular boxes of the same height.

Shengnan: The configurable nature of the hexagonal shape fits in with our idea of creating a small community. For affordability, we wanted to minimize the material costs and on-site construction duration as a part of the design. Therefore we decided to use low-cost materials such as LVL and charred wood as the main structure and cladding system. Moreover, the construction applies pre-fabrication in order to further decrease the cost of the units. We also designed the main structure that supports the hexagonal units in a way that minimizes damage to the existing building where the units attach to. The structure is also designed to require a few on-site assembly processes in order to reduce the overall construction time.

Nicole: Having the ability to access four rows from one hallway allowed for a denser and more efficient configuration as well as shaved off lesser used space within the module. The widest part is typically where counters and work surfaces are located and so eliminated unused space in back corners, and became working space for another row. The modules were also designed to be easily disassembled, reusable, and ultimately recyclable. We decided to use wood for its warmth as well as for its sustainable aspects. The interior is lightly finished to bring out its natural beauty and the exterior is flame treated to char the surface and create a protective layer, a technique called shou sugi ban.

digital rendering of affordable housing design challenge

The Design Process

Elizabeth: We had many ideas about different assemblies and how the system could be deployed in real life. We chose to keep the process of assembly as clean and simple as possible so that anyone would be able to assemble their own units. This reduced many of our components or forced us to design them into the foldable structure.

Alvin: In developing the design, the team had to work and make decisions together, rather than establish a single leader that will make decisions. In the design itself, we had to look at what type of unused spaces there was within Montreal to showcase. We thought that between buildings would be an interesting proposal for housing as it does not take up space at the ground level; rather, the modules become part of the streetscape, using the existing structure to hold itself together. We intend for the site to be scanned using 3D optical scanner so that fabricators can then prefabricate the steel skeleton that will hold the modules in between buildings. From there, the modules would be unfolded and assembled onto the skeleton.

Nicole: We went through many iterations including the standard stick and panel idea with universal connectors, though it did not necessarily pique out interest and seemed very basic. We wanted to choose a site that interested us and creating constraints was crucial for such an open-ended design brief. We decided that the 1x1 meter constraint would be applied to the base a box and panels and components can be longer than that with the intention of transportation of components by truck. That gave us a bit more freedom in terms of construction and a proper ceiling height could be more easily achieved. One iteration of the design had the modules collapsible with two opposing sides being 3 meters to facilitate the sides folding inwards, but after looking back at the form, we questioned if it really needed to be 3 m. We settled on panels being 1.5 meters which created much neater and compact module designs and were neither spatially strained or overly large.

Why Architectural Science at Toronto Met?

We asked our team members to talk about their experiences at Toronto Met and their approach to architecture: Third-year student Elizabeth Young remarked, "I've lived in a small town my whole life, so I wanted to experience living in the chaos of a big city. I am particularity interested in the environmentally sustainable side of architecture. I believe it is one of the most important aspects of architecture today and for the future. The spaces we create in buildings today affect the way in which we perceive the world tomorrow."

Second-year student Alvin Huang says "A specific area in architecture I am interested in is how digital fabrication tools should be used to create the next generation of architecture. I wanted to study architectural science at Toronto Met because of the combination of art and science in design."

I came to Toronto Met because I wanted to be fully immersed and surrounded by architecture... I think it's so interesting how we are being taught how to design buildings that will shape people's lives on a daily basis. It's just such an intriguing field and I cannot wait to be a part of it.

Elizabeth Young

Third year-student Shengnan Gao is especially interested in design-builds and architectural competitions, "before entering the university, I was always interested in solving problems in math and drawing. Architecture is a subject which requires logical thinking, both conceptual and aesthetic in nature, which is why I thought the architectural science program at Toronto Met would be best suited to me."

Nicole Burdynewicz, in her third-year, is interested in building science, affordable housing, and sustainable design: "I was always curious about how things worked, and in elementary and high school, my favourite subjects were math, physics, and art. To me, architecture is the conglomeration of those subjects as well as critical thinking. It also allows me to address everything from climate change to social and community issues. Having this kind of influence on things that matter to me is inspiring. At Toronto Met, I am able to explore these various facets of architecture, building science, and project management, and gain skills in each.