NATIVE CHILD & FAMILY CENTER
Exhibit Category / Catégorie de l'expo: Community & Knowledge
Location/Emplacement: Toronto, Ontario, Canada
Dates: n/a
Designers/Concepteurs: Scott Torrance Landscape Architect, a Division of FORREC Ltd., Architect: Levitt Goodman Architects Ltd.
Clients: Native Child and Family Services of Toronto
More Information/Plus d'informations: n/a
Image Credits/Crédits d'images: Drawings by Scott Torrance Landscape Architect, a Division of FORREC Ltd. Photography: Ben Rahn, A-Frame Photography & Vera Straka.
Project Description: (version française ci-dessous)
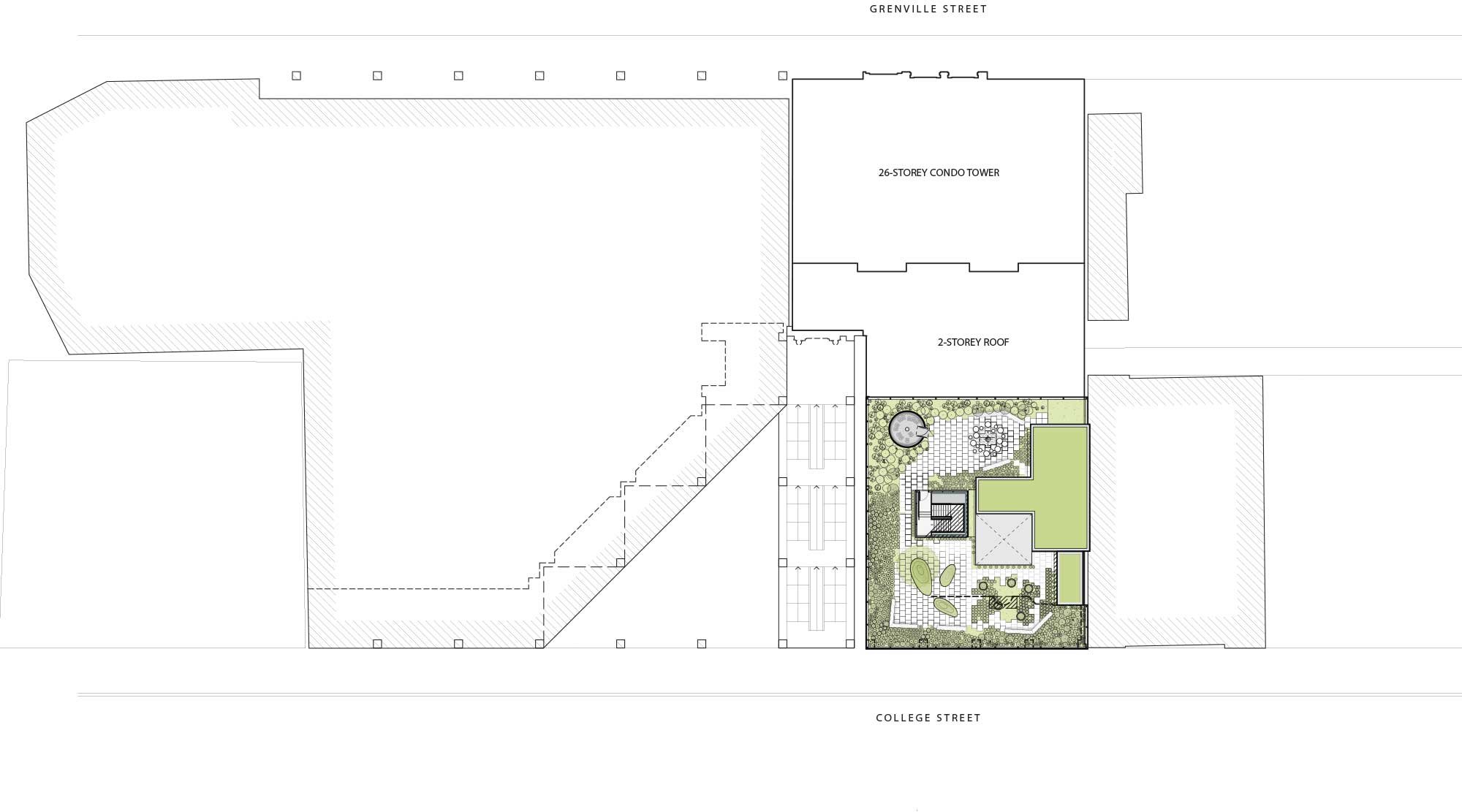
Located on a roof top in downtown Toronto at College and Yonge Streets, this unique natural playground aims to provide space for all age groups, from preschoolers to adults. Safe recycled rubber surfaces provide suitable play space for young children, while natural wood seating, boulders and climbing mounds provide interest for slightly older children. A variety of seating zones provide space for teenagers and adults to meet and interact.
Integrating traditional elements of the users of the Native Child and Family Services of Toronto adds cultural significance to the garden. The roof garden accommodates a circular fire pit with log rounds, a sweat lodge, a Sacred Medicine Garden (cedars, sage, sweet grass and tobacco) and a Three Sister Garden (corn, beans and squash). In contrast to the surrounding city, naturalized planting zones around the perimeter of the site provide a natural haven of visual interest as well as a natural learning environment.
The project converted a 1980s office building into a centre offering social and cultural support services for the aboriginal community in downtown Toronto. A green roof was conceived as cultural and ceremonial grounds to charge unused space with vitality; to provide urban aboriginals with access to nature, rituals and customs; and to crown the building with greenery and the sounds of drumming and song to project a healthy aboriginal presence to the city.
It is an unexpected experience to find a ritual environment outdoors, in the heart of the city, surrounded by condos and office towers. Traditional elements were made possible with creativity and new materials. The healing lodge’s steel ribs, clad in rusted Corten steel and lined with scented cedar, signify branches and skins. A gas heat source is used to create a rooftop fire pit that meets fire codes.
The green roof is used for a wide range of activities, including: public assemblies and ceremonies; drumming and circle sessions; as well as counseling, meetings, and play. A contemporary iteration of a healing lodge provides the only opportunity to participate in sweat rituals within the city. A sacred medicine garden planted with sweet grass, cedars, sage, and tobacco and a Three Sisters garden of corn, beans, and squash, support cultural heritage and environmental awareness, as well as promote locally-grown ceremonial, medicinal and agricultural crops.
The space is shaped by considerations of sustainability: longevity, ease of maintenance and an informed selection of native species that will withstand harsh urban conditions with minimal water. The project rebalances the building’s footprint and invites users to enjoy a respite from urban life in an intimate and soothing setting.
Browse for more projects in the Carrot City Index.
Trouvez d’autres projets avec l’Index de Carrot City.

