L’Arche en Pays Toulousain
Exhibit Category / Catégorie de l'expo: Community & Knowledge
Location/Emplacement: Toulouse - Blagnac, France
Dates: 2012 - present
Designers/Concepteurs: Cabinet Martinie (Architecte), GCAU (Paysagiste du Verger)
Clients: L’Arche en Pays Toulousain
More Information/Plus d'informations: archepaystoulousain.org
Image Credits/Crédits d'images: Érik Pillet, l’Arche en Pays Toulousain — François Dedieu & Heike Trentzsch, Mipyreen — Cabinet Martinie
Project Description: (version française ci-dessous)
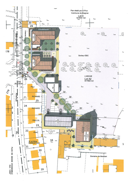
The association L’Arche en Pays Toulousain, one of several “communities” that are members of the federation of L’Arche de Jean Vanier, hosts 44 adults with mental disabilities, providing them with agricultural and life skills. Located within the city of Blagnac, a suburb of Toulouse best known as the main seat of European aviation, it offers an excellent example of the adaptive reuse of a historic site and landscape.
Within the property is a 16th-century chateau (which continues to be used by a religious community as a monastery) and vestiges of other historic structures. The landscape itself has a long history of food production; since the 17th century the land has produced vegetables for Toulouse. L’Arche has developed its own organic production of vegetables and fruits, for use in its own restaurant, and for sale both at an onsite store, and through the delivery of vegetable baskets at various distribution points in the region. The activity started in March 2012 and employs a team of 12 people with disabilities. The cultivated area includes a plot of 4000 m2, including a greenhouse of 2000 m2 and two hectares planted in open fields, enabling the project to reconnect to Blagnac’s tradition of maraichage. A new fruit orchard was also established recently. In addition to providing economic activity and skills, the L’Arche project has helped develop multiple opportunities for its residents to connect with inhabitants of Blagnac and the Toulouse region. One way is through hosting businesses that hold seminars that include having their employees work jointly with L’Arche residents on gardening activities.
To host these multiple functions (growing, processing, distributing, marketing and consumption of food; lodging for residents; meetings…), some of the historic structures have been upgraded and five new buildings were added. The new structures are contemporary designs that echo the scale, form and materials of the historic structures. An overall plan has been established to guide the future development of the site.
This project not only enables the revival of a local agriculture in decline through organic farming, but also promotes the integration of people with challenges into the city. Thus, the presence in Blagnac of a space for gardening and related activities undertaken by adults with disabilities enables the reaching of several objectives beyond food production: strengthening social bonds between citizens, helping change the perception of disability, as well as maintaining a historic landscape while modernizing and integrating it into the suburban context.
Browse for more projects in the Carrot City Index.
Description du Projet:
L’association L’Arche en Pays Toulousain, l’une des nombreuses « communautés » adhérentes à la Fédération des communautés de L’Arche de Jean Vanier, accueille 44 adultes porteurs d’un handicap mental auxquels elle offre à la fois des compétences en agriculture et des activités socio-éducatives. Située en plein centre de la ville de Blagnac, dans la banlieue proche de Toulouse (Capitale aéronautique européenne), elle offre un excellent exemple de réutilisation adaptative d’un site et d’un paysage historiques.
Un château du 16ième siècle (toujours habité par une communauté religieuse qui en a fait un monastère) et des vestiges d’autres structures historiques s’élèvent dans la propriété. Le paysage lui-même a une longue histoire dans le domaine de la production alimentaire ; depuis le 17ième siècle, les terres produisaient des légumes pour la ville de Toulouse. L’Arche a développé sa propre production de légumes et de fruits issus de l’agriculture biologique ; utilisés pour les besoins de son restaurant communautaire, ils sont également vendus aussi bien dans la boutique de la communauté que via la livraison de paniers légumes à divers points relais dans la région toulousaine.
L’activité a démarré en mars 2012 et fait travailler une équipe de 12 personnes en situation de handicap. L’exploitation comprend un terrain de 4000 m2, dont une serre de 2000 m2 et une surface de 2 ha de champs cultivés, le projet renouant ainsi avec la tradition du maraichage à Blagnac. Un nouveau verger a également été créé récemment. Outre l’activité économique et les compétences qu’elle apporte, L’Arche a contribué à développer de multiples occasions pour ses résidents d’avoir des contacts avec les habitants de Blagnac et de Toulouse. Par exemple, en accueillant des séminaires d’entreprises au cours desquels les employés de celles-ci passent du temps à jardiner avec des résidents de l’Arche.
Afin de pouvoir accueillir ces multiples fonctions (la culture, la transformation, la distribution, la commercialisation et la consommation de produits alimentaires ; l’hébergement de résidents ; l’accueil de réunions, etc.), certaines des structures historiques ont été rénovées et cinq nouveaux bâtiments ajoutés. Les nouvelles structures sont des conceptions contemporaines qui rappellent l’échelle, la forme et les matériaux des constructions historiques. Un plan général a été établi afin d’orienter le développement futur du site.
Ce projet permet non seulement de recréer une production locale selon le cahier des charges de l’agriculture biologique, mais favorise aussi l’insertion des personnes en difficulté dans la cité. Ainsi, la présence à Blagnac de cette activité maraichère, et des autres activités qui y sont liées, menées par des adultes en situation de handicap permet d’atteindre plusieurs objectifs autres que la seule production alimentaire : notamment de renforcer le lien social entre citoyens, de contribuer à faire évoluer la perception du handicap, et d’entretenir un site historique en le modernisant et en l’intégrant dans le contexte périurbain.
Trouvez d’autres projets avec l’Index de Carrot City.
