"50 Cent" Jackson Community Garden
Exhibit Category / Catégorie de l'expo: Community & Knowledge
Location/Emplacement: New York, NY, USA
Dates: 2007 - present
Designers/Concepteurs: Walter Hood, Hood Design
Clients: New York Restoration Project
More Information/Plus d'informations: http://www.nyrp.org/Parks_and_Gardens/Community_Gardens/Queens/Curtis_50_Cent_Jackson
Image Credits/Crédits d'images: Walter Hood, Hood Design
Project Description: (version française ci-dessous)
“50 Cent” Jackson Community Garden, initially called Baisley Park Community Garden, is inspired by the Kitchen Gardens of Villandry, France. The formal geometry in the gardens essentially provides the framework for the landscape’s design, creating playful spaces for children and adults alike. The curvilinear shaped parterres in conjunction with the orthogonal raised beds create artful experiences throughout the garden. Vegetation planted by the community introduce a new layer of complexity that reinforces ownership in the garden.
The new raised planting beds are arranged in parallel lines to emphasize the rail line that runs along the northeast side of the trapezoidal 10,000-square-foot garden. A shipping container — a nod to the train that still roars by — serves as a toolshed. Compost bins are tucked behind a fence on the northeast wall, with planting boxes on one side and fruit trees and ornamental beds on the other.
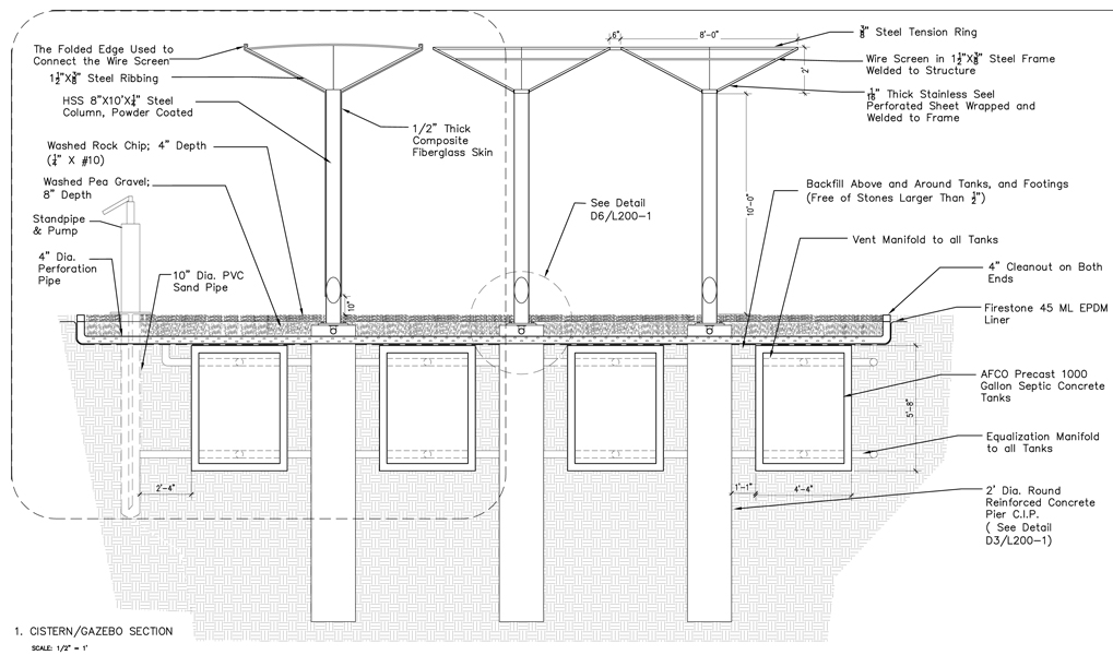
CISTERNS & RAINWATER COLLECTORS
Featured landscape structures include: two 1,500-gallon underground cisterns - using rainwater to irrigate the garden and providing a place for kids to play underneath, arbour - creating a formal entry to the garden, and a storage space. Six 10-foot-tall blue rainwater collectors funnel water into the cisterns. This demonstrates how sustainable technologies like rainwater collection can be incorporated into landscapes that are varied enough to fill many needs.
Project Cost: $150,000
Project Size : 10180 SQ.FT
Browse for more projects in the Carrot City Index.
Trouvez d’autres projets avec l’Index de Carrot City.

