Programme Main Verte
Exhibit Category / Catégorie de l'expo: City
Location/Emplacement: Paris, France
Dates: 2003 - present
Designers/Concepteurs: n/a
Clients: Ville de Paris, Direction des Espaces Verts et de l’Environnement
More Information/Plus d'informations: Poireau Agile - rue des Récollets - Paris 10e; Potager des Oiseaux - impasse des Oiseaux - Paris 3e; Jardin des Périchaux - 17, rue des Périchaux - Paris 15e
Image Credits/Crédits d'images: Ville de Paris, Direction des Espaces Verts et de l’Environnement
Project Description: (version française ci-dessous)
In 2003 the City of Paris set up a program intended to support the creation of community gardens. These collective gardens, assigned to local associations, allow Parisians to come together and practice their gardening skills.
They are usually located on city property and sometimes on land owned privately or by social housing organizations. Some are temporary but most are intended to be permanent. The city provides landscaping services, topsoil, water and a utility shed. The possibility of pollution is addressed by the provision of raised beds or rigid planting containers. A code of management known as the Charte Main Verte (The Main Verte Charter) assists the associations in managing their projects. The charter stipulates that the garden must be open to the public two half-days every week plus one on the weekend and whenever a gardener is present. The use of toxic chemicals is prohibited. The associations receive consultation, information and documentation. Today there are nearly 70 community gardens for the inhabitants of Paris and more than 50 have signed onto the Charte Main Verte.
Three cases presented here illustrate the variety of urban contexts that these gardens exist in.
LE POIREAU AGILE
This garden has been present in the Jardin Public Villemin since 2005. It is landscaped in the shape of a circle, 300 m2 in size and opening onto the largest park in Paris’ 10th Arrondissement. The inhabitants of the neighbourhood, who are members of the Ville Mains Jardins association, collectively manage the functions of the garden. Gardening is practiced collectively with certain plots being reserved for partners of the project. Raised beds installed on paved surfaces allow members of the public with limited mobility to participate as well.
LE POTAGER DES OISEAUX
Located in the 3rd Arrondissement of Paris and created in 2004, this small community garden of about 120 m2 is found in a formerly vacant lot. It is located by the Jardiniers du 3e Association. 10 rectangles, each containing 3 parcels of 1 m2 were developed by the Direction des Espaces Verts et de l’Environnement de la Ville de Paris (Authority for Green Spaces and the Environment, City of Paris). 3 plots are allocated to kindergartens and schools. The 27 others are part of a public planting program. Roses and espalier fruit trees have been planted along the walls of the garden and a tool shed and greenhouse have also been installed.
JARDINS DES PERICHAUX
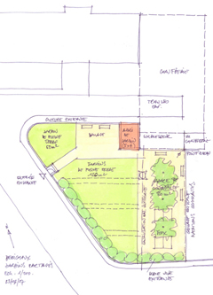
Atop the concrete slab of an old basketball court in the 15th Arrondissement, the City of Paris created a community garden for this neighbourhood in 2009. Overseen by the Entr’aides Association, the 350 m2 garden has been divided into 50 plots of 3.5 m2 each, arranged in bands 2 to 3 m wide. Schools, nursing homes, hospital staff and other residents of the neighbourhood gather here to garden together.
Browse for more projects in the Carrot City Index.
Description du Projet:
En 2003, la Ville de Paris s’est dotée d’un programme destiné à accompagner la création de jardins partagés. Ces jardins collectifs, confiés par convention à des associations, permettent aux Parisiens de se retrouver pour jardiner ensemble.
Le jardin partagé se trouve la plupart du temps sur un terrain de la Ville de Paris (espace vert, dent creuse, …), parfois sur un autre terrain (bailleurs sociaux, propriétaires privés, etc.). Certains sont éphémères, la plupart sont pérennes. La Ville aménage le terrain, amène de la terre végétale et installe une arrivée d’eau et une cabane. L’éventuelle pollution des sols est prise en compte dans les aménagements (bacs hors sol pour les comestibles). L’association mène ensuite son projet collectif dans le respect de la Charte Main Verte. Celle-ci stipule que le jardin doit être ouvert au public deux demi-journées par semaine dont une le week-end et à chaque fois qu’un jardinier est présent. L’utilisation de produits toxiques est interdite. Les associations bénéficient de conseils, d’informations et de documentations. On compte aujourd’hui près de 70 jardins collectifs d’habitants à Paris, dont plus de 50 ont signé la Charte Main Verte.
Trois cas illustrent ici la variété de contextes urbains dans lesquels les jardins partagés s’inscrivent.
LE POIREAU AGILE
Situé dans le jardin public Villemin depuis 2005, le Poireau Agile est un jardin partagé de 300 m2 dans un espace paysager circulaire, ouvert sur le plus grand parc du 10e arrondissement. Des habitants du quartier, membres de l’association Ville Mains Jardins, assurent ensemble le fonctionnement de ce jardin. Le jardinage est pratiqué collectivement, certaines parcelles sont réservées aux partenaires du projet. Des bacs surélevés installés sur les surfaces pavées du jardin permettent à un public à mobilité réduite de jardiner également.
LE POTAGER DES OISEAUX
Situé dans le 3ème arrondissement et créé en 2004, ce petit jardin partagé (120m2) se trouve sur un ancien terrain en friche. Il est géré par l’association des Jardiniers du 3e. Les 10 rectangles (chacun contenant 3 parcelles de 1m2) ont été aménagés par la Direction des Espaces Verts et de l’Environnement de la Ville de Paris. 3 parcelles sont attribuées aux crèches et aux écoles, les 27 autres font l’objet d’un programme de plantations collectives. Des rosiers, fruitiers en espalier, etc. ont été plantés le long des murs qui entourent le jardin, une cabane à outils et une serre ont été installées.
JARDINS DES PERICHAUX
Sur la dalle de béton d’un ancien terrain de basket du 15e arrondissement, la Ville de Paris a créer en 2009 un jardin partagé pour les habitants de ce quartier populaire. Géré par l’association Entr’aides, les 350 m2 de jardin ont été divisés en 50 parcelles de 3,50 m2, disposées en bandes de 2 à 3 mètres de large. Ecoles, maisons de retraite, personnels des hôpitaux, et bien sûr habitants du quartier s’y retrouvent pour jardiner ensemble.
Trouvez d’autres projets avec l’Index de Carrot City.

