Southeast False Creek
Exhibit Category / Catégorie de l'expo: City
Location/Emplacement: Vancouver, BC, Canada
Dates: 1997 - present
Designers/Concepteurs: Holland Barrs Planning Group
Clients: City of Vancouver
More Information/Plus d'informations: https://vancouver.ca/home-property-development/southeast-false-creek.aspx
Image Credits/Crédits d'images: Janine DelaSalle, Holland Barrs Planning Group for the City of Vancouver
Project Description: (version française ci-dessous)
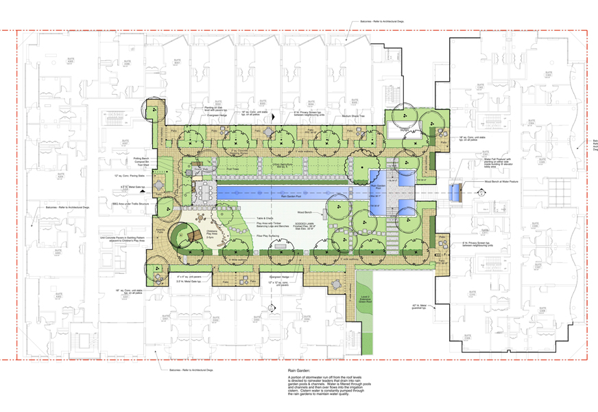
The Southeast False Creek (SEFC) project demonstrates how planning at the neighbourhood scale can facilitate the introduction of agriculture into high-density, high-rise urban areas. The SEFC neighbourhood is one of the last remaining brownfield waterfront development sites in Vancouver. When complete, the 80-acre mixed-use development will include residential, live/work, retail, and office uses, public amenities and cultural venues, accommodating an estimated 16,000 people. The first phase on 18 acres, known as Millennium Water, incorporates the 2010 Vancouver Olympic Village, including 1,100 residential units, 68,000 sq ft (6,300 m2) of commercial space, and a civic centre.
SEFC is being developed as a model of a sustainable community. Food issues were considered from an early stage and in 1997 the SEFC Policy Statement established the central role of food production in future development of the neighbourhood. The objectives were “to establish clarity on the role food production should play in the development of a sustainable city and neighbourhood” and “to use urban agriculture and community gardens to assist in meeting other social, environmental and economic objectives in SEFC.”
An Urban Agriculture strategy was commissioned for SEFC in 2002 to explore the opportunities for production, processing and distribution of food. This document identified spaces for potential food production, including private residences, public buildings, schools, parks, and street rights-of-way. In 2006 the SEFC Official Development Plan embedded urban agriculture as an important component of the area’s development, ensuring that opportunities for food production in public and private spaces would be possible. Holland Barrs Planning Group (now HB Lanarc) prepared a report for the City in 2007 that identifies “viable UA (urban agriculture) opportunities to enhance the sustainability strategies of high-density developments”. This report proposes design guidelines, technical solutions, and management strategies, which are intended to facilitate urban agriculture in the neighbourhood. It highlights the perspectives and needs of the designer and the gardener, and categorises a range of opportunities for urban food production in private spaces such as: rooftops, balconies, around buildings, in courtyards, and inside buildings; as well as more public spaces such as: plazas, parks, streets, schools and community centres. The report discusses each of these in some detail to identify particular approaches and considerations.
Browse for more projects in the Carrot City Index.
Trouvez d’autres projets avec l’Index de Carrot City.

